技术实力雄厚,生产团队完善,欢迎您的光临。
专注生产和经营振动工程和环保设备
CMS埋刮板输送机
CMS埋刮板输送机是一种在封闭的矩形断面壳体内,借助于运动着的刮板链条连续输送散装物料的运输设备。MS埋刮板输送机结构简单,重量轻,体积小,密封性强,安装维修方便。它不但可以水平输送,也可以倾斜或者垂直输送,可以多点加料,多点卸料,工艺布置灵活,全封闭输送不污染环境。当发生过载时,抗冲击继电器马上切断电源,保护整机完好。我公司研制的MS埋刮板输送机采用板式刮板头部卸料口加长,卸料拍打装置、中间宽卸料口以及加大弯曲段圆弧半径等措施,成功的解决了头部积料和尾部积料。
系列产品广泛适用于冶金、建材、电力、化工、水泥、港口、码头、煤炭、矿山、粮油、食品、饲料、等行业和部门。
特点:
1、MS埋刮板输送机常用于水平输送颗粒和粉状物料,亦能在150角范围内作倾斜输送。因此,在
单点进出料基础上,也可多点进料,多点出料,对输送有毒、易爆、高温和易飞扬的物料,
改善工人操作条件和减少环境污染等方面有突出的特点。
2、MS埋刮板输送机具有整机寿命高、运行平稳、结构尺寸小、输送量大、能耗低、物料破损率低等特点。
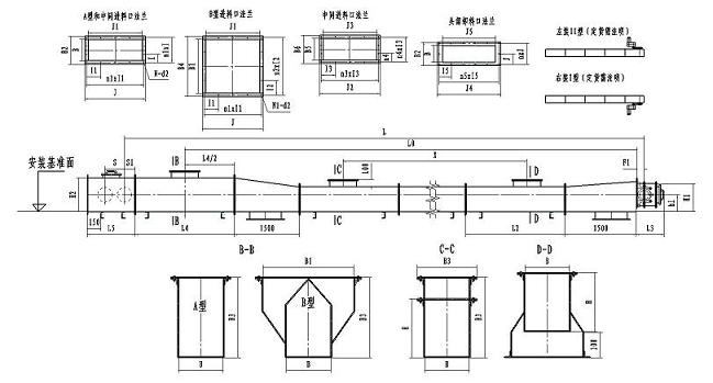
附MS埋刮板输送机示意图:

专注生产和经营振动工程和环保设备
我公司产品选用高品质原材料
注重口碑,做更好的产品
产品的每一个制作步骤
都有专人把控。
产品经得起检测机构推敲
保证每个产品的质量。
公司拥有齐全的生产设备
达数十台设备。
有经验丰富的技术人才若干人
进行产品升级及研发。
公司拥有健全的售后服务体系
保证售后问题能立即处理。
专注生产和经营振动工程和环保设备
专注生产和经营振动工程和环保设备
专注生产和经营振动工程和环保设备