羞羞软件下载,羞羞漫画WWW成人漫画樱,美女羞羞网站,国产羞羞在线观看

欢迎访问新乡县羞羞软件下载机械设备有限公司官方网站!
新乡县羞羞软件下载机械设备有限公司 致力于振动工程和环保设备的研发

产品规格齐全    应用广泛    可按需定制

全国服务热线(微信同号)

13017606588

国产羞羞在线观看

技术实力雄厚,生产团队完善,欢迎您的光临。

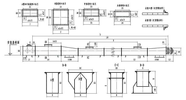
★ major products ★ DTII皮带输送机

  一、应用范围  DTⅡ型带式输送机由于输送量大,结构简单,维护方便,成本低,通用性强等优点,而被广泛地应用在冶金、矿...

技术完善高素质人员体系健全售后到位

咨询热线:13017606588
description详细说明

专注生产和经营振动工程和环保设备

  一、应用范围


  DTⅡ型带式输送机由于输送量大,结构简单,维护方便,成本低,通用性强等优点,而被广泛地应用在冶金、矿山、煤炭、港口、交通、水电、化工等部门,连续输送各种散料和成件物品。


  二、特点及应用


  DTⅡ型带式输送机带宽有六种:500、650、800、1000、1200、1400毫米。 


  可用于水平或倾斜输送,还可采用带凸弧段、凹弧段与直线段组合的输送形式。允许输送的物料块度取决于带宽、带速、槽角和倾角,也取决于大块物料出现的频率。不同物料所允许的*大倾角见表1,倾斜向下输送时,允许*大倾角为表1所列值得80%。若需要采用大于表1的倾角时,可选用花纹带式输送机。


  DTⅡ型带式输送机所选用的输送带有普通橡胶带和塑料带两种,适用的工作环境温度一般为-25~+40℃之间输送具有酸性碱性、油类物质和有机溶剂等成份的物料时,需采用耐油、耐酸碱的橡胶带或塑料带。


   DTⅡ型带式输送机主要技术参数

带宽(mm)

500

650

800

1000

1200

1400

带速(m/s)

0.8-2.5

0.8-2.5

0.8-3.15

0.8-4.0

1.0-5.0

1.0-5.0

输送能力(t/h)

69-217

127-397

198-781

324-1622

593-2971

825-4130

功率(kw)

2.2-37

2.2-90

2.2-315

3.0-315

5.5-315

15-315

  输送能力

带宽
     mm

带速(m/s)

0.8

1.0

1.25

1.6

2.0

2.5

3.15

4

5

6.5

输送量(t/h)

500

69

87

108

139

174

217

 

 

 

 

650

127

159

198

254

318

397

 

 

 

 

800

198

248

310

397

496

620

781

 

 

 

1000

324

405

507

649

811

1014

1278

1622

 

 

1200

 

593

742

951

1188

1486

1872

2377

2971

 

1400

 

825

1032

1321

1652

2065

2602

3304

4130

 

1600

 

 

 

 

2186

2733

344

4373

5466

 

1800

 

 

 

 

2795

3494

4403

5591

6986

9083

2000

 

 

 

 

3470

4338

5466

6941

8676

11277

2200

 

 

 

 

 

 

6843

8690

10863

14120

2400

 

 

 

 

 

 

8289

10526

13518

17104

advantage 品牌优势

专注生产和经营振动工程和环保设备

  • 严选材质

    我公司产品选用高品质原材料

    注重口碑,做更好的产品

  • 多环节把控

    产品的每一个制作步骤

    都有专人把控。

  • 细节到位

    产品经得起检测机构推敲

    保证每个产品的质量。

  • 设备齐全

    公司拥有齐全的生产设备

    达数十台设备。

  • 技术雄厚

    有经验丰富的技术人才若干人

    进行产品升级及研发。

  • 售后完善

    公司拥有健全的售后服务体系

    保证售后问题能立即处理。

Online Message在线留言

专注生产和经营振动工程和环保设备

网站地图