技术实力雄厚,生产团队完善,欢迎您的光临。
专注生产和经营振动工程和环保设备
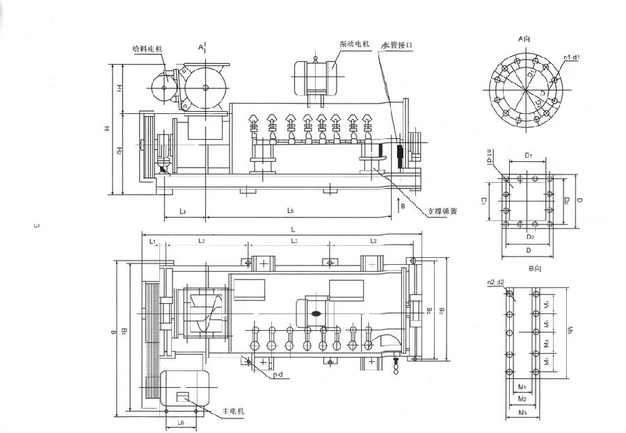
单轴粉尘加湿机由均匀供料、叶片输料、混合机打加湿、振动系统四部分组成,配以电控和供水系统。整体固定在一个支架上,筒体由四组弹性元件支撑,通过激震装置,使整机在运转过程中,筒体高频震动,筒壁高频振动,筒壁与搅拌轴之间**保持一定的间隙,减小了运转阻力,杜绝了闷机、堵转现象,减小了停机清理时间,提高了工作效率。
售后服务及其他
1、产品保修一年,在保修期内,如出现质量问题,我厂负责修理,对于用户操作疏忽产生的损坏,仅收材料费。
2、超过保修期的产品,如出现质量问题,我厂负责修理酌情收取工料费。
3、我厂负责免费调试,用户指导及培训操作人员。
4、如有特殊要求,请在订货时务必说明。
附单轴粉尘加湿机示意图:

专注生产和经营振动工程和环保设备
我公司产品选用高品质原材料
注重口碑,做更好的产品
产品的每一个制作步骤
都有专人把控。
产品经得起检测机构推敲
保证每个产品的质量。
公司拥有齐全的生产设备
达数十台设备。
有经验丰富的技术人才若干人
进行产品升级及研发。
公司拥有健全的售后服务体系
保证售后问题能立即处理。
专注生产和经营振动工程和环保设备
专注生产和经营振动工程和环保设备
专注生产和经营振动工程和环保设备